Discover Apartment 128, 'The Bramley’, a second-floor studio apartment offering 408 sq. ft. of modern living space, access to a private resident’s first floor podium garden and an 18th floor roof terrace with London skyline views, and located just a 7 minute walk from two Elizabeth line stations.
The generous U-shaped kitchen boasts Quartz ‘Salt and Pepper’ worktops, gloss handleless cabinets, fully integrated appliances and a handy breakfast bar. The living space, brightened by floor-to-ceiling windows and Amtico Spacia flooring throughout, extends effortlessly onto an west facing balcony. A handy partition between the bedroom and living space allows for separation between the two areas without impacting the natural light flooding through.
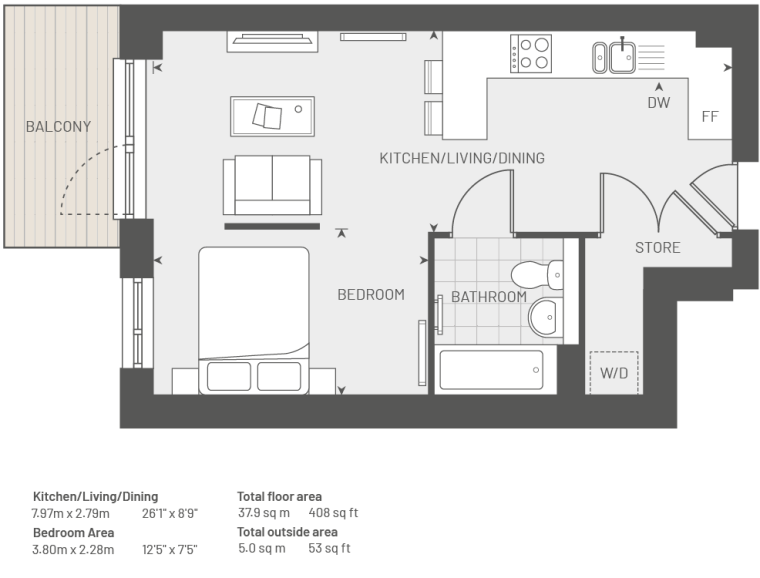
'The Bramley’ is ingeniously designed with a storage cupboard and a contemporary family bathroom that echoes the luxury finishes found throughout the development, featuring porcelain tiles, a heated chrome towel rail, and sleek white sanitaryware.
Dimensions
-
Kitchen/Living/Dining
26'1" x 8'9" , 7.97m x 2.79m
-
Master Bedroom
12'5" x 7'5" , 3.80m x 2.28m
-
Balcony/Terrace
53 sqft , 5.0 sqm
-
Total Area
408 sq. ft, 38 sq. m

Mortgage Calculator
How much could you borrow to buy here?
So you can browse our homes knowing exactly what you can afford, we've teamed up with Torc24. Check how much you could borrow, view mortgage lenders and get credit scored all at the same time.
* this mortgage calculator is provided by Torc24 and won't impact your credit score.
Welcome to One Goodmayes, a development of studio, 1, 2 & 3 bedroom apartments enviably located on the High Road, just a 7 minute walk to both Goodmayes and Seven Kings stations, with direct access to the Elizabeth line. This prime location offers unbeatable travel times including a quick 13-minute commute to Stratford, a 21-minute journey to Liverpool Street and under 1 hour to Heathrow Airport. Discover a vibrant community and enjoy the convenience of living in Zone 4, with a range of local amenities within easy reach.
