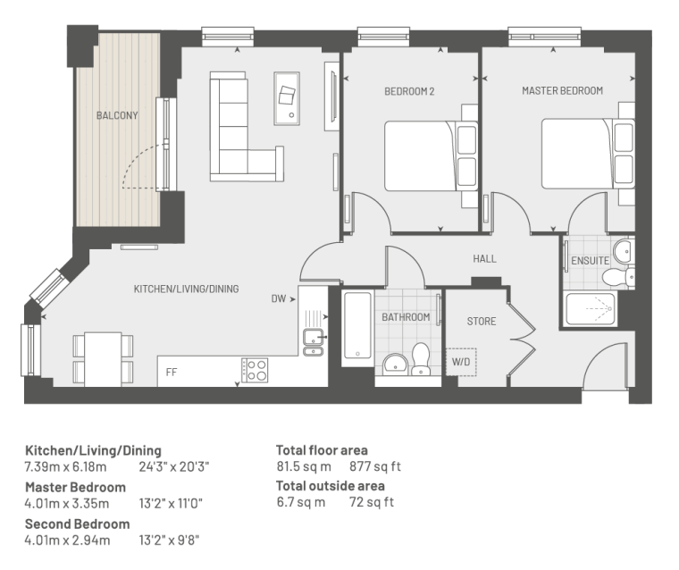
Welcome to ‘The Hibiscus’- Apartment 206 is a beautifully designed two-bedroom apartment on the first floor, offering 877 sq. ft. of modern, well-proportioned living space in one of North London’s most desirable village-style neighbourhoods. With direct trains from New Barnet to Moorgate in just 28 minutes, commuting is quick and convenient.
At the heart of the home is a spacious open-plan L-shaped kitchen, complete with Quartz 'Salt and Pepper' worktops, sleek gloss handleless cabinets, and fully integrated appliances. The stylish living area, finished with contemporary flooring, is flooded with natural light from floor-to-ceiling windows and opens out to a private east/south -facing balcony perfect for enjoying the sunshine throughout the day.
The master is generously sized along with a second bedroom with lots of natural light thanks to striking floor-to-ceiling windows. The master includes a stylish en suite, while a separate contemporary bathroom adds a luxurious touch, featuring porcelain tiling, a heated towel rail, and elegant white sanitaryware.
Additional built-in storage adds everyday practicality, while the apartment’s high-quality finishes and smart layout makes The Hibiscus offer modern comfort, quality, and easy, elegant living.
Dimensions
-
Kitchen/Living/Dining
24'3" x 20'3" , 7.39m x 6.18m
-
Master Bedroom
13'2" x 11'0" , 4.01m x 3.35m
-
Bedroom 2
13'2" x 9'8" , 4.01m x 2.94m
-
Balcony/Terrace
72 sq ft , 6.7 sq m
-
Total Area
877 sq. ft, 81 sq. m

Mortgage Calculator
How much could you borrow to buy here?
So you can browse our homes knowing exactly what you can afford, we've teamed up with Torc24. Check how much you could borrow, view mortgage lenders and get credit scored all at the same time.
* this mortgage calculator is provided by Torc24 and won't impact your credit score.
Park Quarter is a collection of studio, 1, 2 and 3 bedroom apartments and 3 bedroom duplexes in Barnet, one of London's most desirable areas. Just a 4 minute walk from New Barnet station for National Rail services into Moorgate in less than 30 minutes, with a host of amenities, restaurants and open spaces right on your doorstep.
