Introducing The Delta – A Spacious Two-Bedroom Apartment offering 751 sq ft of stylish living space, The Delta is a beautifully designed two-bedroom apartment that combines modern elegance with a functional, open-plan layout. The sixth-floor location features floor-to-ceiling windows that open onto a north-facing balcony, your private retreat for outdoor relaxation and soaking up the afternoon sun.
The fully integrated kitchen boasts sleek quartz countertops and handleless cabinetry, providing both style and practicality. Amtico flooring runs throughout the L-shaped kitchen and living areas, while the bedrooms are carpeted in soft grey tones for added comfort. The master bedroom includes a chic en-suite, and a separate family bathroom is finished with elegant Future Stone porcelain tiles and contemporary chrome fixtures.
Perfect for those seeking a contemporary, low-maintenance lifestyle, this apartment offers a harmonious blend of quality finishes and private outdoor space.
Dimensions
-
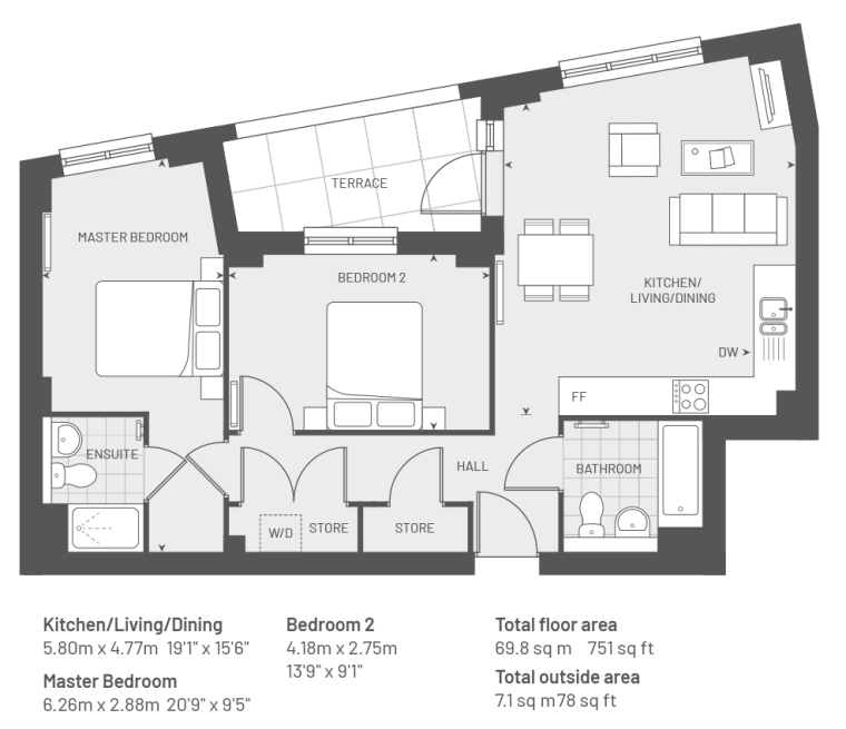
Kitchen/Living/Dining
19'1" x 15'6" , 5.80m x 4.77m
-
Master Bedroom
20'9" x 9'5" , 6.26m x 2.88m
-
Bedroom 2
13'9" x 9'1" , 4.18m x 2.75m
-
Balcony/Terrace
78 sq ft , 7.1 sq m
-
Total Area
751 sq. ft


Mortgage Calculator
How much could you borrow to buy here?
So you can browse our homes knowing exactly what you can afford, we've teamed up with Torc24. Check how much you could borrow, view mortgage lenders and get credit scored all at the same time.
* this mortgage calculator is provided by Torc24 and won't impact your credit score.
Welcome to Printmakers Yard, where your future is in the making. Nestled in the vibrant community of Brentford Waterside, this development of studio, 1, 2 and 3 bedroom apartments and 4 bedroom triplexes offers a unique opportunity to embrace a dynamic lifestyle in one of West London's most eclectic neighbourhoods.
With its proximity to the river, some apartments at Printmakers Yard boast stunning views of the tranquil waters, providing residents with a serene backdrop to their daily lives. Imagine waking up to the gentle flow of the river and ending your day with breathtaking sunsets over the water – all from the comfort of your own home.
